Listing provided courtesy of Jaime Silveira of Malik Real Estate Group, Inc.. Last updated 2026-03-26 08:06:31.000000. Listing information © 2026 CRMLS.
Asking Price: $845,000
8120 Azucena, Atascadero CA 93422
Community: ATSC - Atascadero
This Single Family Residence property was built in 1966 and is priced at $845,000. Please see the additional details below.
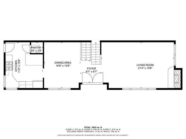
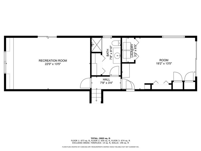
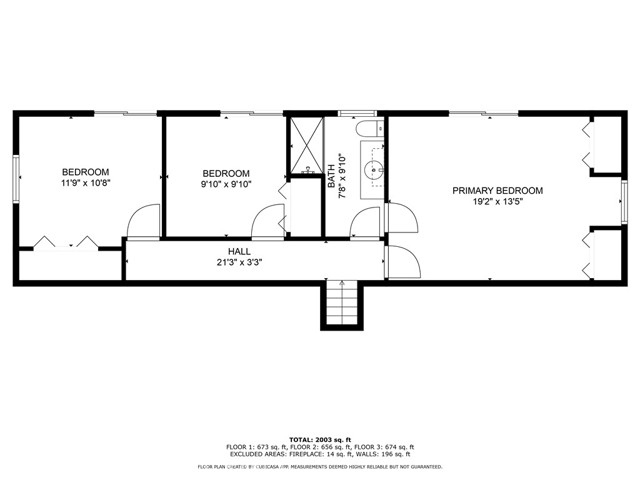
This well maintained 3 bedroom, 2 bathroom residence offers 2100 sf of living space on a serene ~ 0.36 acre lot, combining charm, privacy and modern updates in a prime Atascadero location, right down the road from the Atascadero Lake and Zoo. From the moment you arrive, you’ll be drawn in by the home’s wonderful curb appeal, setting the tone for the warmth and character found throughout. Step inside to find vaulted ceilings that create a bright, airy atmosphere. The spacious living room features large picture windows that flood the space with natural light, along with a cozy wood-burning stove—perfect for cool Atascadero evenings. The kitchen has been updated with granite countertops, open shelving and a walk-in pantry, offering a practical and efficient layout. Upstairs, you’ll find two guest bedrooms, each with sliding glass doors leading to a private deck overlooking the tranquil backyard. The main bathroom boasts a large walk-in shower, while the primary bedroom features dual closets and its own access to the deck—your own private retreat. Downstairs, a cozy family room offers built-in bookshelves with additional storage and a convenient second bathroom with direct access to the backyard—perfect for guests or outdoor entertaining. Step outside to truly unwind. The expansive backyard is lined with mature oak trees, creating a peaceful, private oasis. Enjoy dining al fresco or hosting friends on the large brick paver patio, complete with built-in benches for extra seating. Located near Atascadero Lake Park, with its year-round events and recreational opportunities and just minutes from downtown and freeway access, this property offers a comfortable and connected lifestyle in a charming neighborhood setting. Please review the Virtual Tour for additional information.




























































